МНОГОФАМИЛНА ЖИЛИЩНА СГРАДА ОТ ЗАТВОРЕН ТИП С МАГАЗИНИ, ОФИСИ И ПОДЗЕМЕН ПАРКИНГ НА 2 НИВА
ЕТАЖНОСТ: ВХОД А – 8 ЕТАЖА; ВХОД B – 9 ЕТАЖА; ВХОД C – 9 ЕТАЖА; ВХОД D – 9 ЕТАЖА
В БЛИЗОСТ ДО БИЗНЕС СГРАДИ ВЕРТИГО И ХОНДА
КОМПЛЕКС В МАНАСТИРСКИ ЛИВАДИ – ИЗТОК
Уют, комфорт, стил и спокойствие
Съчетание от модерна визия, отлична локация, уют, лукс, комфорт и сигурност. Така накратко може да се опише жилищната сграда от затворен тип, разположена в един от най-новите и динамично развиващи се райони на София – Манастирски ливади Изток.
Местоположението на комплекса – в карето между Околовръстен път, бул. България и ул. Васил Стефанов, комбинира по уникален начин панорамната гледка към Витоша, спокойствието и чистия въздух на планината и бързата връзка с центъра на столицата. В непосредствена близост се намират резиденция Бояна, МОЛ България и Южния парк, както и множество бизнес сгради, търговски вериги, училища и детски градини.
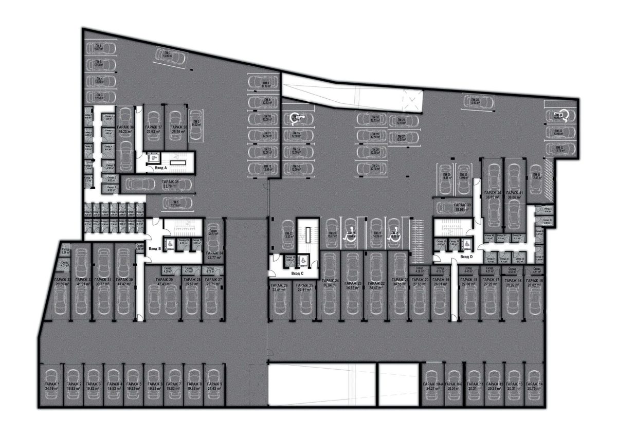
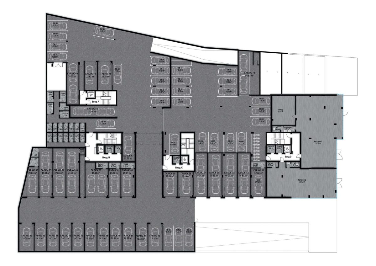
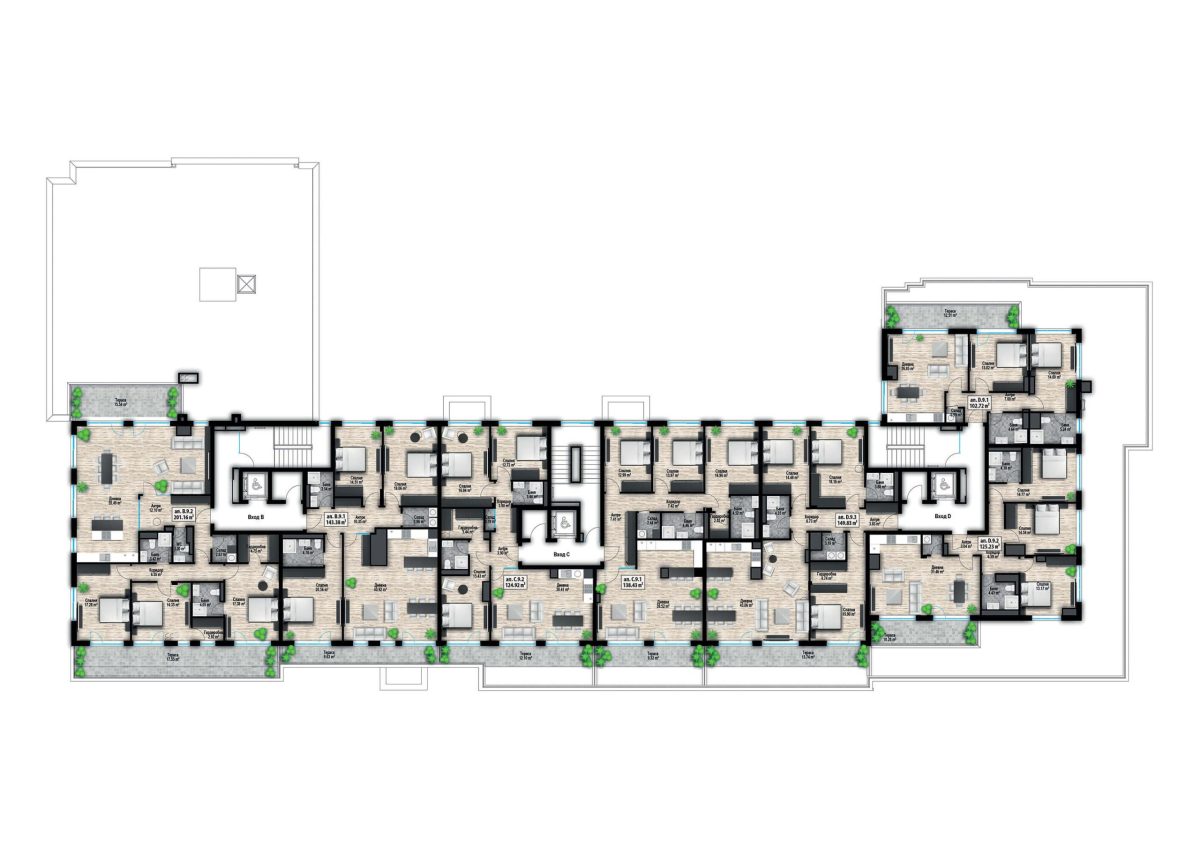
Проектирана от водещи архитекти, сградата се състои от четири входа – вход А на 8 етажа, и съответно входове B, C, D на 9 етажа, в които са разпределени двустайни, тристайни и четиристайни апартаменти, офис зона на партерно ниво и 2 подземни нива с гаражи, паркоместа и складове. Комплексът разполага с озеленен вътрешен двор със зони за отдих, който осигурява спокойна и чиста среда и максимален комфорт на обитателите. Общата надземна разгъната площ на Комплекса e 14 352 кв.м.
Конструкцията на сградата е скелетно-безгредова от монолитен стоманобетон с висококачествена HPL вентилируема фасадна облицовка, с дървесен дизайн и минерална мазилка, нискоемисионен стъклопакет, топлоизолация от каменна вата и EPS и пароизолация на покривните пространства. Стълбищните клетки и коридорите в комплекса са от гранитогрес с противоплъзгаща повърхност. Сигурността на живущите в комплекса се гарантира от видеонаблюдение, аудио система на входа за всеки апартамент и ограничен достъп.
Инвеститор – Jade 2
Строител – ВЕКТРО
Старт на строителството – юни 2022 г.
Достигнат етап – АКТ 14
ЦЕНИТЕ НА АПАРТАМЕНТИ, ПАРКОМЕСТА И ГАРАЖИ – В ТАБЛИЦАТА СА СЪС ДДС
НОВО СТРОИТЕЛСТВО В МАНАСТИРСКИ ЛИВАДИ
За детайлна информация можете да се свържете с нас:
0886 333 444, 0886 003 233, imoti@besohomes.bg
ЕКСТЕРИОР
Филтър
| Тип | Вход | Етаж | Стаи | Изглед | Живуща площ | Обща площ | Цена за кв/м | Обща цена | Статут | |
|---|---|---|---|---|---|---|---|---|---|---|
| Офис O.1.1 | A | 1 | юг, запад | 157.8 | 185.42 | продаден | ||||
| Офис О.1.2 | B | 1 | юг | 89.31 | 104.93 | продаден | ||||
| Апартамент А.2.1 | A | 2 | 2 | запад, север | 64.94 | 76.3 | продаден | |||
| Апартамент А.2.2 | A | 2 | 3 | юг, запад | 101.08 | 118.77 | продаден | |||
| Апартамент А.2.3 | A | 2 | 3 | юг, север | 97.15 | 114.14 | продаден | |||
| Апартамент А.3.1 | A | 3 | 2 | запад, север | 64.94 | 76.3 | продаден | |||
| Апартамент А.3.2 | A | 3 | 3 | юг, запад | 100.93 | 118.6 | продаден | |||
| Апартамент А.3.3 | A | 3 | 3 | юг, север | 97.15 | 114.14 | продаден | |||
| Апартамент А.4.1 | A | 4 | 2 | запад, север | 64.94 | 76.3 | продаден | |||
| Апартамент А.4.2 | A | 4 | 3 | юг, запад | 100.93 | 118.6 | продаден | |||
| Апартамент А.4.3 | A | 4 | 3 | юг, север | 97.15 | 114.14 | продаден | |||
| Апартамент А.5.1 | A | 5 | 2 | запад, север | 64.94 | 76.3 | продаден | |||
| Апартамент А.5.2 | A | 5 | 3 | юг, запад | 101.08 | 118.77 | продаден | |||
| Апартамент А.5.3 | A | 5 | 3 | юг, север | 97.15 | 114.14 | продаден | |||
| Апартамент А.6.1 | A | 6 | 2 | запад, север | 64.94 | 76.3 | продаден | |||
| Апартамент А.6.2 | A | 6 | 3 | юг, запад | 101.08 | 118.77 | продаден | |||
| Апартамент А.6.3 | A | 6 | 3 | юг, север | 97.15 | 114.14 | продаден | |||
| Апартамент А.7.1 | A | 7 | 2 | запад, север | 64.94 | 76.3 | продаден | |||
| Апартамент А.7.2 | A | 7 | 3 | юг, запад | 100.94 | 118.61 | продаден | |||
| Апартамент А.7.3 | A | 7 | 3 | юг, север | 97.15 | 114.14 | продаден | |||
| Апартамент А.8.1 | A | 8 | 2 | запад, север | 65 | 76.38 | продаден | |||
| Апартамент А.8.2 | A | 8 | 3 | юг, запад | 101.01 | 118.68 | продаден | |||
| Апартамент А.8.3 | A | 8 | 3 | юг, север | 97.15 | 114.14 | продаден | |||
| Апартамент В.1.1 | B | 1 | 3 | изток, запад | 87.28 | 102.56 | продаден | |||
| Апартамент В.1.2 | B | 1 | 3 | изток | 85.42 | 100.37 | продаден | |||
| Апартамент В.1.3 | B | 1 | 3 | юг, изток | 87.38 | 102.6 | продаден | |||
| Апартамент В.2.1 | B | 2 | 2 | запад | 60.97 | 71.63 | продаден | |||
| Апартамент В.2.2 | B | 2 | 3 | изток | 87.96 | 103.35 | продаден | |||
| Апартамент В.2.3 | B | 2 | 3 | юг, изток | 96.39 | 113.27 | продаден | |||
| Апартамент В.2.4 | B | 2 | 2 | юг | 59.4 | 69.8 | продаден | |||
| Апартамент В.3.1 | B | 3 | 2 | изток, запад | 60.97 | 71.63 | продаден | |||
| Апартамент В.3.2 | B | 3 | 3 | изток | 87.96 | 103.35 | продаден | |||
| Апартамент В.3.3. | B | 3 | 3 | юг, изток | 96.39 | 113.27 | продаден | |||
| Апартамент В.3.4 | B | 3 | 2 | юг | 59.4 | 69.8 | продаден | |||
| Апартамент В.4.1 | B | 4 | 2 | изток, запад | 60.97 | 71.63 | продаден | |||
| Апартамент В.4.2 | B | 4 | 3 | изток | 87.96 | 103.35 | продаден | |||
| Апартамент В.4.3 | B | 4 | 3 | юг, изток | 96.39 | 113.27 | продаден | |||
| Апартамент В.4.4 | B | 4 | 2 | юг | 59.4 | 69.8 | продаден | |||
| Апартамент В.5.1 | B | 5 | 2 | изток, запад | 60.97 | 71.63 | продаден | |||
| Апартамент В.5.2 | B | 5 | 3 | изток | 87.96 | 103.35 | продаден | |||
| Апартамент В.5.3 | B | 5 | 3 | юг, изток | 96.39 | 113.27 | продаден | |||
| Апартамент В.5.4 | B | 5 | 2 | юг | 59.4 | 69.8 | продаден | |||
| Апартамент В.6.1 | B | 6 | 2 | изток, запад | 60.97 | 71.63 | продаден | |||
| Апартамент В.6.2 | B | 6 | 3 | изток | 87.96 | 103.35 | продаден | |||
| Апартамент В.6.3 | B | 6 | 3 | юг, изток | 96.39 | 113.27 | продаден | |||
| Апартамент В.6.4 | B | 6 | 2 | юг | 59.4 | 69.8 | продаден | |||
| Апартамент В.7.1 | B | 7 | 2 | изток, запад | 60.97 | 71.63 | продаден | |||
| Апартамент В.7.2 | B | 7 | 3 | изток | 87.96 | 103.35 | продаден | |||
| Апартамент В.7.3 | B | 7 | 3 | юг, изток | 96.39 | 113.27 | продаден | |||
| Апартамент В.7.4 | B | 7 | 2 | юг | 59.4 | 69.8 | продаден | |||
| Апартамент В.8.1 | B | 8 | 2 | изток, запад | 60.97 | 71.63 | продаден | |||
| Апартамент В.8.2 | B | 8 | 3 | изток | 87.96 | 103.35 | продаден | |||
| Апартамент В.8.3 | B | 8 | 3 | юг, изток | 96.39 | 113.27 | продаден | |||
| Апартамент В.8.4 | B | 8 | 2 | юг | 59.4 | 69.8 | продаден | |||
| Апартамент В.9.1 | B | 9 | 4 | изток, запад | 143.38 | 168.43 | продаден | |||
| Апартамент В.9.2 | B | 9 | 4 | юг, изток, запад | 201.16 | 236.3 | продаден | |||
| Апартамент С.1.1 | C | 1 | 2 | запад | 55.91 | 65.7 | продаден | |||
| Апартамент С.1.2 | C | 1 | 2 | изток | 55.22 | 64.89 | продаден | |||
| Апартамент С.1.3 | C | 1 | 2 | изток | 46.3 | 54.4 | продаден | |||
| Апартамент С.1.4 | C | 1 | 2 | изток | 46.62 | 54.78 | продаден | |||
| Апартамент С.1.5 | C | 1 | 2 | запад | 51.39 | 60.39 | продаден | |||
| Апартамент С.2.1 | C | 2 | 2 | запад | 58.86 | 69.15 | продаден | |||
| Апартамент С.2.2 | C | 2 | 3 | изток | 92.69 | 108.9 | продаден | |||
| Апартамент С.2.3 | C | 2 | 2 | изток | 57.02 | 67 | продаден | |||
| Апартамент С.2.4 | C | 2 | 2 | изток | 57.94 | 68.09 | продаден | |||
| Апартамент С.2.5 | C | 2 | 2 | изток | 62.01 | 72.86 | продаден | |||
| Апартамент С.2.6 | C | 2 | 2 | запад | 55.88 | 65.67 | продаден | |||
| Апартамент С.3.1 | C | 3 | 2 | запад | 58.86 | 69.15 | продаден | |||
| Апартамент С.3.2 | C | 3 | 3 | изток | 92.69 | 108.9 | продаден | |||
| Апартамент С.3.3 | C | 3 | 2 | изток | 57.02 | 67 | продаден | |||
| Апартамент С.3.4 | C | 3 | 2 | изток | 57.78 | 67.9 | продаден | |||
| Апартамент С.3.5 | C | 3 | 2 | изток | 61.44 | 72.18 | продаден | |||
| Апартамент С.3.6 | C | 3 | 2 | запад | 55.88 | 65.67 | продаден | |||
| Апартамент С.4.1 | C | 4 | 2 | запад | 58.89 | 69.18 | продаден | |||
| Апартамент С.4.2 | C | 4 | 3 | изток | 92.65 | 108.86 | продаден | |||
| Апартамент С.4.3 | C | 4 | 2 | изток | 57.02 | 67 | продаден | |||
| Апартамент С.4.4 | C | 4 | 2 | изток | 57.78 | 67.9 | продаден | |||
| Апартамент С.4.5 | C | 4 | 2 | изток | 61.95 | 72.8 | продаден | |||
| Апартамент С.4.6 | C | 4 | 2 | запад | 55.88 | 65.67 | продаден | |||
| Апартамент С.5.1 | C | 5 | 2 | запад | 58.86 | 69.15 | продаден | |||
| Апартамент С.5.2 | C | 5 | 3 | изток | 92.69 | 108.9 | продаден | |||
| Апартамент С.5.3 | C | 5 | 2 | изток | 57.02 | 67 | продаден | |||
| Апартамент С.5.4 | C | 5 | 2 | изток | 57.78 | 67.9 | продаден | |||
| Апартамент С.5.5 | C | 5 | 2 | изток | 61.95 | 72.8 | продаден | |||
| Апартамент С.5.6 | C | 5 | 2 | запад | 55.88 | 65.67 | продаден | |||
| Апартамент С.6.1 | C | 6 | 2 | запад | 58.86 | 69.15 | продаден | |||
| Апартамент С.6.2 | C | 6 | 3 | изток, запад | 92.69 | 108.9 | продаден | |||
| Апартамент С.6.3 | C | 6 | 2 | изток | 57.02 | 67 | продаден | |||
| Апартамент С.6.4 | C | 6 | 2 | изток | 57.78 | 67.9 | продаден | |||
| Апартамент С.6.5 | C | 6 | 2 | изток | 61.94 | 72.79 | продаден | |||
| Апартамент С.6.6 | C | 6 | 2 | запад | 55.88 | 65.67 | продаден | |||
| Апартамент С.7.1 | C | 7 | 2 | запад | 58.86 | 69.15 | продаден | |||
| Апартамент С.7.2 | C | 7 | 3 | изток | 92.69 | 108.9 | продаден | |||
| Апартамент С.7.3 | C | 7 | 2 | изток | 57.02 | 67 | продаден | |||
| Апартамент С.7.4 | C | 7 | 2 | изток | 57.78 | 67.9 | продаден | |||
| Апартамент С.7.5 | C | 7 | 2 | изток | 61.99 | 72.84 | продаден | |||
| Апартамент С.7.6 | C | 7 | 2 | запад | 55.88 | 65.67 | продаден | |||
| Апартамент С.8.1 | C | 8 | 2 | запад | 58.86 | 69.15 | продаден | |||
| Апартамент С.8.2 | C | 8 | 3 | изток, запад | 92.69 | 108.9 | продаден | |||
| Апартамент С.8.3 | C | 8 | 2 | изток | 57.02 | 67 | продаден | |||
| Апартамент С.8.4 | C | 8 | 2 | изток | 57.78 | 67.9 | продаден | |||
| Апартамент С.8.5 | C | 8 | 2 | изток | 61.99 | 72.78 | продаден | |||
| Апартамент С.8.6 | C | 8 | 2 | запад | 55.88 | 65.67 | продаден | |||
| Апартамент С.9.1 | C | 9 | 4 | изток, запад | 138.02 | 162.12 | продаден | |||
| Апартамент С.9.2 | C | 9 | 4 | изток, запад | 124.92 | 146.75 | продаден | |||
| Апартамент D.1.1 | D | 1 | 2 | юг, север | 63.42 | 74.59 | продаден | |||
| Апартамент D.1.2 | D | 1 | 3 | запад, север | 87.8 | 103.17 | продаден | |||
| Апартамент D.1.3 | D | 1 | 2 | север | 59.55 | 69.98 | продаден | |||
| Апартамент D.1.4 | D | 1 | 3 | изток, север | 82.61 | 97.08 | продаден | |||
| Апартамент D.1.5 | D | 1 | 2 | изток | 62.48 | 73.42 | продаден | |||
| Апартамент D.1.6 | D | 1 | 3 | изток, запад | 95.32 | 112 | продаден | |||
| Апартамент D.2.1 | D | 2 | 3 | юг, запад | 88.38 | 103.86 | продаден | |||
| Апартамент D.2.2 | D | 2 | 3 | запад, север | 87.78 | 103.15 | продаден | |||
| Апартамент D.2.3 | D | 2 | 2 | север | 59.55 | 69.98 | продаден | |||
| Апартамент D.2.4 | D | 2 | 3 | изток, север | 82.61 | 97.08 | продаден | |||
| Апартамент D.2.5 | D | 2 | 2 | изток | 62.27 | 73.18 | продаден | |||
| Апартамент D.2.6 | D | 2 | 3 | изток, запад | 101.5 | 119.25 | продаден | |||
| Апартамент D.3.1 | D | 3 | 3 | юг, запад | 88.38 | 103.86 | продаден | |||
| Апартамент D.3.2 | D | 3 | 3 | запад, север | 87.78 | 103.15 | продаден | |||
| Апартамент D.3.3 | D | 3 | 2 | север | 59.55 | 69.98 | продаден | |||
| Апартамент D.3.4 | D | 3 | 3 | изток, север | 82.61 | 97.08 | продаден | |||
| Апартамент D.3.5 | D | 3 | 2 | изток | 64.24 | 75.12 | продаден | |||
| Апартамент D.3.6 | D | 3 | 3 | изток, запад | 101.51 | 119.26 | продаден | |||
| Апартамент D.4.1 | D | 4 | 3 | юг, запад | 88.38 | 103.86 | продаден | |||
| Апартамент D.4.2 | D | 4 | 3 | запад, север | 87.78 | 103.15 | продаден | |||
| Апартамент D.4.3 | D | 4 | 2 | север | 59.55 | 69.98 | продаден | |||
| Апартамент D.4.4 | D | 4 | 3 | изток, север | 82.61 | 97.08 | продаден | |||
| Апартамент D.4.5 | D | 4 | 2 | изток | 62.27 | 73.18 | продаден | |||
| Апартамент D.4.6 | D | 4 | 3 | изток, запад | 101.37 | 119.12 | продаден | |||
| Апартамент D.5.1 | D | 5 | 3 | юг, запад | 88.46 | 103.94 | продаден | |||
| Апартамент D.5.2 | D | 5 | 3 | запад, север | 87.78 | 103.15 | продаден | |||
| Апартамент D.5.3 | D | 5 | 2 | север | 59.55 | 69.98 | продаден | |||
| Апартамент D.5.4 | D | 5 | 3 | изток, север | 82.61 | 97.08 | продаден | |||
| Апартамент D.5.5 | D | 5 | 2 | изток | 62.27 | 73.18 | продаден | |||
| Апартамент D.5.6 | D | 5 | 3 | изток, запад | 101.37 | 119.12 | продаден | |||
| Апартамент D.6.1 | D | 6 | 3 | юг, запад | 88.38 | 103.86 | продаден | |||
| Апартамент D.6.2 | D | 6 | 3 | запад, север | 87.78 | 103.15 | продаден | |||
| Апартамент D.6.3 | D | 6 | 2 | север | 59.55 | 69.98 | продаден | |||
| Апартамент D.6.4 | D | 6 | 3 | изток, север | 82.61 | 97.08 | продаден | |||
| Апартамент D.6.5 | D | 6 | 2 | изток | 62.27 | 73.18 | продаден | |||
| Апартамент D.6.6 | D | 6 | 3 | изток, запад | 101.37 | 119.12 | продаден | |||
| Апартамент D.7.1 | D | 7 | 3 | юг, запад | 88.38 | 103.86 | продаден | |||
| Апартамент D.7.2 | D | 7 | 3 | запад, север | 87.78 | 103.15 | продаден | |||
| Апартамент D.7.3 | D | 7 | 2 | север | 59.55 | 69.98 | продаден | |||
| Апартамент D.7.4 | D | 7 | 3 | изток, север | 82.61 | 97.08 | продаден | |||
| Апартамент D.7.5 | D | 7 | 2 | изток | 62.27 | 73.18 | продаден | |||
| Апартамент D.7.6 | D | 7 | 3 | изток, запад | 101.37 | 119.12 | продаден | |||
| Апартамент D.8.1 | D | 8 | 3 | юг, запад | 88.38 | 103.86 | продаден | |||
| Апартамент D.8.2 | D | 8 | 3 | запад, север | 87.78 | 103.15 | продаден | |||
| Апартамент D.8.3 | D | 8 | 2 | север | 59.55 | 69.98 | продаден | |||
| Апартамент D.8.4 | D | 8 | 3 | изток, север | 82.61 | 97.08 | продаден | |||
| Апартамент D.8.5 | D | 8 | 2 | изток | 62.27 | 73.18 | продаден | |||
| Апартамент D.8.6 | D | 8 | 3 | изток, запад | 101.37 | 119.12 | продаден | |||
| Апартамент D.9.1 | D | 9 | 3 | юг, запад, север | 102.72 | 120.65 | продаден | |||
| Апартамент D.9.2 | D | 9 | 4 | изток, север | 125.23 | 147.08 | продаден | |||
| Апартамент D.9.3 | D | 9 | 4 | изток, запад | 149.83 | 176 | продаден | |||
| Магазин 1 | -1 | 233.37 | 274.2 | продаден | ||||||
| Магазин 2 | -1 | 134.57 | 158.12 | продаден | ||||||
| Паркомясто ПМ 36 | -1 | 16.56 | 16.56 | продаден | ||||||
| Паркомясто ПМ 37 | -1 | 16.56 | 16.56 | продаден | ||||||
| Паркомясто ПМ 38 | -1 | 16.56 | 16.56 | продаден | ||||||
| Паркомясто ПМ 39 | -1 | 12.5 | 12.5 | продаден | ||||||
| Паркомясто ПМ 40 | -1 | 11.5 | 11.5 | продаден | ||||||
| Паркомясто ПМ 41 | -1 | 12.56 | 12.56 | продаден | ||||||
| Паркомясто ПМ 42 | -1 | 12.56 | 12.56 | продаден | ||||||
| Паркомясто ПМ 43 | -1 | 12.49 | 12.49 | продаден | ||||||
| Паркомясто ПМ 44 | -1 | 16.95 | 16.95 | продаден | ||||||
| Паркомясто ПМ 45 | -1 | 13 | 13 | продаден | ||||||
| Паркомясто ПМ 46 | -1 | 12.02 | 12.02 | продаден | ||||||
| Паркомясто ПМ 47 | -1 | 11.87 | 11.87 | продаден | ||||||
| Паркомясто ПМ 48 | -1 | 11.87 | 11.87 | продаден | ||||||
| Паркомясто ПМ 49 | -1 | 11.87 | 11.87 | продаден | ||||||
| Паркомясто ПМ 50 | -1 | 11.87 | 11.87 | продаден | ||||||
| Паркомясто ПМ 51 | -1 | 12.5 | 12.5 | продаден | ||||||
| Паркомясто ПМ 52 | -1 | 12.5 | 12.5 | продаден | ||||||
| Паркомясто ПМ 53 | -1 | 12.5 | 12.5 | продаден | ||||||
| Паркомясто ПМ 54 | -1 | 19.78 | 19.78 | продаден | ||||||
| Паркомясто ПМ 55 | -1 | 12.39 | 12.39 | продаден | ||||||
| Паркомясто ПМ 56 | -1 | 12.25 | 12.25 | продаден | ||||||
| Паркомясто ПМ 57 | -1 | 12.75 | 12.75 | продаден | ||||||
| Паркомясто ПМ 58 | -1 | 12.5 | 12.5 | продаден | ||||||
| Паркомясто ПМ 59 | -1 | 15.48 | 15.48 | продаден | ||||||
| Паркомясто ПМ 60 | -1 | 18.5 | 18.5 | продаден | ||||||
| Паркомясто ПМ 61 | -1 | 14.7 | 14.7 | продаден | ||||||
| Паркомясто ПМ 62 | -1 | 18.13 | 18.13 | продаден | ||||||
| Паркомясто ПМ 63 | -1 | 12.48 | 12.48 | продаден | ||||||
| Паркомясто ПМ 64 | -1 | 12.39 | 12.39 | продаден | ||||||
| Паркомясто ПМ 65 | -1 | 12.64 | 12.64 | продаден | ||||||
| Гараж Г 42 | -1 | 24.78 | 28.26 | продаден | ||||||
| Гараж Г 43 | -1 | 20.31 | 23.14 | продаден | ||||||
| Гараж Г 44 | -1 | 20.31 | 23.14 | продаден | ||||||
| Гараж Г 45 | -1 | 20.31 | 23.14 | продаден | ||||||
| Гараж Г 46 | -1 | 20.31 | 23.14 | продаден | ||||||
| Гараж Г 47 | -1 | 20.31 | 23.14 | продаден | ||||||
| Гараж Г 48 | -1 | 20.31 | 23.14 | продаден | ||||||
| Гараж Г 49 | -1 | 20.31 | 23.14 | продаден | ||||||
| Гараж Г 50 | -1 | 21.52 | 24.52 | продаден | ||||||
| Гараж Г 51 | -1 | 20.31 | 23.14 | продаден | ||||||
| Гараж Г 52 | -1 | 24.14 | 27.5 | продаден | ||||||
| Гараж Г 53 | -1 | 32.6 | 37.17 | продаден | ||||||
| Гараж Г 54 | -1 | 34.81 | 39.69 | продаден | ||||||
| Гараж Г 55 | -1 | 40 | 45.61 | продаден | ||||||
| Гараж Г 56 | -1 | 37.29 | 42.51 | продаден | ||||||
| Гараж Г 57 | -1 | 35.74 | 40.73 | продаден | ||||||
| Гараж Г 58 | -1 | 23.19 | 26.44 | продаден | ||||||
| Гараж Г 59 | -1 | 22.53 | 25.67 | продаден | ||||||
| Гараж Г 60 | -1 | 29.71 | 33.86 | продаден | ||||||
| Гараж Г 61 | -1 | 25.67 | 29.26 | продаден | ||||||
| Гараж Г 62 | -1 | 47.43 | 54.08 | продаден | ||||||
| Гараж Г 63 | -1 | 41.42 | 47.22 | продаден | ||||||
| Гараж Г 64 | -1 | 37.8 | 43.1 | продаден | ||||||
| Гараж Г 65 | -1 | 43.88 | 50.02 | продаден | ||||||
| Гараж Г 66 | -1 | 29.86 | 34.04 | продаден | ||||||
| Гараж Г 67 | -1 | 22.77 | 25.97 | продаден | ||||||
| Гараж Г 68 | -1 | 34.5 | 39.32 | продаден | ||||||
| Гараж Г 69 | -1 | 30.52 | 34.78 | продаден | ||||||
| Гараж Г 70 | -1 | 22.63 | 25.8 | продаден | ||||||
| Гараж Г 71 | -1 | 25.26 | 28.79 | продаден | ||||||
| Гараж Г 72 | -1 | 55.87 | 63.69 | продаден | ||||||
| Склад 41 | -1 | 4.31 | 4.53 | продаден | ||||||
| Склад 42 | -1 | 4.32 | 4.54 | продаден | ||||||
| Склад 43 | -1 | 4.7 | 4.95 | продаден | ||||||
| Склад 44 | -1 | 4.66 | 4.91 | продаден | ||||||
| Склад 45 | -1 | 4.58 | 4.83 | продаден | ||||||
| Склад 46 | -1 | 3.2 | 3.37 | продаден | ||||||
| Склад 47 | -1 | 2.76 | 2.9 | продаден | ||||||
| Склад 48 | -1 | 2.99 | 3.16 | продаден | ||||||
| Склад 49 | -1 | 2.99 | 3.16 | продаден | ||||||
| Склад 50 | -1 | 2.99 | 3.16 | продаден | ||||||
| Склад 51 | -1 | 2.99 | 3.16 | продаден | ||||||
| Склад 52 | -1 | 3.14 | 3.31 | продаден | ||||||
| Склад 53 | -1 | 3.17 | 3.34 | продаден | ||||||
| Склад 54 | -1 | 2.73 | 2.87 | продаден | ||||||
| Склад 55 | -1 | 2.96 | 3.13 | продаден | ||||||
| Склад 56 | -1 | 2.96 | 3.13 | продаден | ||||||
| Склад 57 | -1 | 2.96 | 3.13 | продаден | ||||||
| Склад 58 | -1 | 2.96 | 3.13 | продаден | ||||||
| Склад 59 | -1 | 3.1 | 3.27 | продаден | ||||||
| Склад 60 | -1 | 4.73 | 4.98 | продаден | ||||||
| Склад 61 | -1 | 3.89 | 4.09 | продаден | ||||||
| Склад 62 | -1 | 3.99 | 4.19 | продаден | ||||||
| Склад 63 | -1 | 4.62 | 4.87 | продаден | ||||||
| Склад 64 | -1 | 3.99 | 4.19 | продаден | ||||||
| Паркомясто ПМ 1 | -2 | 13.15 | 13.15 | продаден | ||||||
| Паркомясто ПМ 2 | -2 | 11.02 | 11.02 | продаден | ||||||
| Паркомясто ПМ 3 | -2 | 12.5 | 12.5 | продаден | ||||||
| Паркомясто ПМ 4 | -2 | 12.5 | 12.5 | продаден | ||||||
| Паркомясто ПМ 5 | -2 | 12.43 | 12.43 | продаден | ||||||
| Паркомясто ПМ 6 | -2 | 16.87 | 16.87 | продаден | ||||||
| Паркомясто ПМ 7 | -2 | 13 | 13 | продаден | ||||||
| Паркомясто ПМ 8 | -2 | 19.1 | 19.1 | продаден | ||||||
| Паркомясто ПМ 9 | -2 | 12.53 | 12.53 | продаден | ||||||
| Паркомясто ПМ 10 | -2 | 12.5 | 12.5 | продаден | ||||||
| Паркомясто ПМ 11 | -2 | 12.5 | 12.5 | продаден | ||||||
| Паркомясто ПМ 12 | -2 | 12.5 | 12.5 | продаден | ||||||
| Паркомясто ПМ 13 | -2 | 12.5 | 12.5 | продаден | ||||||
| Паркомясто ПМ 14 | -2 | 12.5 | 12.5 | продаден | ||||||
| Паркомясто ПМ 15 | -2 | 12.5 | 12.5 | продаден | ||||||
| Паркомясто ПМ 16 | -2 | 12.5 | 12.5 | продаден | ||||||
| Паркомясто ПМ 17 | -2 | 12.5 | 12.5 | продаден | ||||||
| Паркомясто ПМ 18 | -2 | 12.13 | 12.13 | продаден | ||||||
| Паркомясто ПМ 19 | -2 | 12.5 | 12.5 | продаден | ||||||
| Паркомясто ПМ 20 | -2 | 12.5 | 12.5 | продаден | ||||||
| Паркомясто ПМ 21 | -2 | 12.38 | 12.38 | продаден | ||||||
| Паркомясто ПМ 22 | -2 | 13.33 | 13.33 | продаден | ||||||
| Паркомясто ПМ 23 | -2 | 15.77 | 15.77 | продаден | ||||||
| Паркомясто ПМ 24 | -2 | 18.04 | 18.04 | продаден | ||||||
| Паркомясто ПМ 25 | -2 | 14.39 | 14.39 | продаден | ||||||
| Паркомясто ПМ 26 | -2 | 18.38 | 18.38 | продаден | ||||||
| Паркомясто ПМ 27 | -2 | 12.35 | 12.35 | продаден | ||||||
| Паркомясто ПМ 28 | -2 | 12.1 | 12.1 | продаден | ||||||
| Паркомясто ПМ 29 | -2 | 14.31 | 14.31 | продаден | ||||||
| Паркомясто ПМ 30 | -2 | 12.99 | 12.99 | продаден | ||||||
| Паркомясто ПМ 31 | -2 | 17.87 | 17.87 | продаден | ||||||
| Паркомясто ПМ 32 | -2 | 12.75 | 12.75 | продаден | ||||||
| Паркомясто ПМ 33 | -2 | 12.5 | 12.5 | продаден | ||||||
| Паркомясто ПМ 34 | -2 | 18.59 | 18.59 | продаден | ||||||
| Паркомясто ПМ 35 | -2 | 12.53 | 12.53 | продаден | ||||||
| Гараж Г 1 | -2 | 24.19 | 27.58 | продаден | ||||||
| Гараж Г 2 | -2 | 19.83 | 22.61 | продаден | ||||||
| Гараж Г 3 | -2 | 19.83 | 22.61 | продаден | ||||||
| Гараж Г 4 | -2 | 19.83 | 22.61 | продаден | ||||||
| Гараж Г 5 | -2 | 19.83 | 22.61 | продаден | ||||||
| Гараж Г 6 | -2 | 19.83 | 22.61 | продаден | ||||||
| Гараж Г 7 | -2 | 19.83 | 22.61 | продаден | ||||||
| Гараж Г 8 | -2 | 19.83 | 22.61 | продаден | ||||||
| Гараж Г 9 | -2 | 21.43 | 24.43 | продаден | ||||||
| Гараж Г 10 | -2 | 24.27 | 27.66 | продаден | ||||||
| Гараж Г 10 | -2 | 20.34 | 23.2 | продаден | ||||||
| Гараж Г 11 | -2 | 20.31 | 23.14 | продаден | ||||||
| Гараж Г 12 | -2 | 20.31 | 23.14 | продаден | ||||||
| Гараж Г 13 | -2 | 20.31 | 23.14 | продаден | ||||||
| Гараж Г 14 | -2 | 20.75 | 23.67 | продаден | ||||||
| Гараж Г 15 | -2 | 26.82 | 30.58 | продаден | ||||||
| Гараж Г 16 | -2 | 28.99 | 33.06 | продаден | ||||||
| Гараж Г 17 | -2 | 27.2 | 31.01 | продаден | ||||||
| Гараж Г 18 | -2 | 27.8 | 31.7 | продаден | ||||||
| Гараж Г 19 | -2 | 26.01 | 29.66 | продаден | ||||||
| Гараж Г 20 | -2 | 27.63 | 31.5 | продаден | ||||||
| Гараж Г 21 | -2 | 34.55 | 39.37 | продаден | ||||||
| Гараж Г 22 | -2 | 38.47 | 43.85 | продаден | ||||||
| Гараж Г 23 | -2 | 36.86 | 42.02 | продаден | ||||||
| Гараж Г 24 | -2 | 36.84 | 42 | продаден | ||||||
| Гараж Г 25 | -2 | 22.91 | 26.11 | продаден | ||||||
| Гараж Г 26 | -2 | 22.41 | 25.55 | продаден | ||||||
| Гараж Г 27 | -2 | 29.71 | 33.86 | продаден | ||||||
| Гараж Г 28 | -2 | 25.67 | 29.26 | продаден | ||||||
| Гараж Г 29 | -2 | 47.43 | 54.08 | продаден | ||||||
| Гараж Г 30 | -2 | 41.42 | 47.22 | продаден | ||||||
| Гараж Г 31 | -2 | 39.77 | 45.35 | продаден | ||||||
| Гараж Г 32 | -2 | 41.91 | 47.77 | продаден | ||||||
| Гараж Г 33 | -2 | 29.86 | 34.04 | продаден | ||||||
| Гараж Г 34 | -2 | 22.77 | 25.97 | продаден | ||||||
| Гараж Г 35 | -2 | 33.78 | 38.52 | продаден | ||||||
| Гараж Г 36 | -2 | 30.2 | 34.43 | продаден | ||||||
| Гараж Г 37 | -2 | 22.63 | 25.8 | продаден | ||||||
| Гараж Г 38 | -2 | 25.26 | 28.79 | продаден | ||||||
| Гараж Г 39 | -2 | 18.96 | 21.62 | продаден | ||||||
| Гараж Г 40 | -2 | 36.85 | 42.01 | продаден | ||||||
| Гараж Г 41 | -2 | 38.86 | 44.3 | продаден | ||||||
| Склад 1 | -2 | 4.18 | 4.4 | продаден | ||||||
| Склад 2 | -2 | 4.03 | 4.25 | продаден | ||||||
| Склад 3 | -2 | 4.5 | 4.72 | продаден | ||||||
| Склад 4 | -2 | 4.91 | 5.16 | продаден | ||||||
| Склад 5 | -2 | 4.93 | 5.18 | продаден | ||||||
| Склад 6 | -2 | 4.36 | 4.58 | продаден | ||||||
| Склад 7 | -2 | 4.69 | 4.94 | продаден | ||||||
| Склад 8 | -2 | 3.56 | 3.76 | продаден | ||||||
| Склад 9 | -2 | 3.55 | 3.75 | продаден | ||||||
| Склад 10 | -2 | 3.24 | 3.41 | продаден | ||||||
| Склад 11 | -2 | 3.17 | 3.34 | продаден | ||||||
| Склад 12 | -2 | 3.2 | 3.37 | продаден | ||||||
| Склад 13 | -2 | 2.76 | 2.9 | продаден | ||||||
| Склад 14 | -2 | 2.99 | 3.16 | продаден | ||||||
| Склад 15 | -2 | 2.99 | 3.16 | продаден | ||||||
| Склад 16 | -2 | 2.99 | 3.16 | продаден | ||||||
| Склад 17 | -2 | 3.14 | 3.31 | продаден | ||||||
| Склад 18 | -2 | 3.14 | 3.31 | продаден | ||||||
| Склад 19 | -2 | 3.1 | 3.27 | продаден | ||||||
| Склад 20 | -2 | 2.96 | 3.13 | продаден | ||||||
| Склад 21 | -2 | 2.96 | 3.13 | продаден | ||||||
| Склад 22 | -2 | 2.96 | 3.13 | продаден | ||||||
| Склад 23 | -2 | 2.96 | 3.13 | продаден | ||||||
| Склад 24 | -2 | 2.73 | 2.87 | продаден | ||||||
| Склад 25 | -2 | 3.17 | 3.34 | продаден | ||||||
| Склад 26 | -2 | 4.73 | 4.98 | продаден | ||||||
| Склад 27 | -2 | 3.89 | 4.09 | продаден | ||||||
| Склад 28 | -2 | 3.99 | 4.19 | продаден | ||||||
| Склад 29 | -2 | 4.62 | 4.87 | продаден | ||||||
| Склад 30 | -2 | 3.99 | 4.19 | продаден | ||||||
| Склад 31 | -2 | 4.03 | 4.25 | продаден | ||||||
| Склад 32 | -2 | 4.31 | 4.53 | продаден | ||||||
| Склад 33 | -2 | 4.43 | 4.65 | продаден | ||||||
| Склад 34 | -2 | 4.45 | 4.67 | продаден | ||||||
| Склад 35 | -2 | 4.07 | 4.29 | продаден | ||||||
| Склад 36 | -2 | 4.86 | 5.11 | продаден | ||||||
| Склад 37 | -2 | 4.94 | 5.19 | продаден | ||||||
| Склад 38 | -2 | 3.18 | 3.35 | продаден | ||||||
| Склад 39 | -2 | 3.29 | 3.46 | продаден | ||||||
| Склад 40 | -2 | 2.61 | 2.84 | продаден | ||||||
Проявявате интерес?
Посочете апартамент и телефон за връзка и ние ще ви се обадим в удобно за вас време








































































