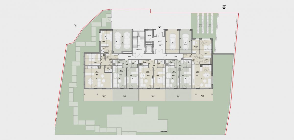
ЖИЛИЩНА СГРАДА С ПОДЗЕМНИ ГАРАЖИ.
ЕТАЖНОСТ : 1 ВХОД, 7 ЖИЛИЩНИ ЕТАЖА.
РАЗГЪНАТА ЗАСТРОЕНА ПЛОЩ НА СГРАДАТА: 4 498 КВ.М.
МЕСТОПОЛОЖЕНИЕ: ГР. СОФИЯ, м. ВИТОША – ВЕЦ СИМЕОНОВО, БУЛ. „СИМЕОНОВСКО ШОСЕ“.
AZALEA GARDENS
Уют, спокойствие, добра локация.
Новият проект на BESO HOMES предлага комфортен и спокоен живот сред динамиката на големия град.
Azalea Gardens е малка бутикова сграда, разположена на тихо и уединено място и в същото време на пешеходно разстояние от главни булеварди.
Сградата се отличава с модерна фасада, вътрешен озеленен двор и контролиран достъп.
Жилищната сграда е разположена в кв. Витоша, в съседство с кв. Дианабад и Студентски град.
Локацията е една от най-предпочитаните в София, в близост до Ловен парк, на пешеходно разстояние от основни булеварди – бул. „Симеоновско шосе“ и бул. „Доктор Г.М.Димитров“.
Районът е с висок инвестиционен потенциал и е отличен избор, както за закупуване на собствено жилище, така и за отдаване под наем.
Достъпът до центъра е бърз и лесен, като на пешеходно разстояние има и автобусна спирка.
Модерна архитектура с функционални разпределения.
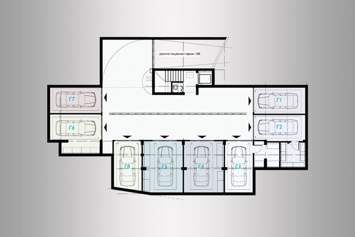
Проектирана от водещи архитекти, сградата се състои от един вход със 7 жилищни етажа и 1 подземен етаж с гаражи и паркоместа.
40 бр. апартамента, 40 бр. паркоместа и места за велосипеди.
Общата разгърната площ на AZALEA GARDENS е 4 498кв.м.
Инвеститор е компанията Клевър Инв, част от инвестиционната група BESO HOMES, изпълнител – Inno Build Enginering, а проектът е създаден от Архитектурно студио – Ivo Petrov Architects.
ЦЕНИТЕ НА АПАРТАМЕНТИ, ПАРКОМЕСТА И ГАРАЖИ – В ТАБЛИЦАТА СА СЪС ДДС
AZALEA GARDENS – НОВО СТРОИТЕЛСТВО В КВ. ВИТОША OT BESO HOMES
ЕКСТЕРИОР
ИНТЕРИОР
Филтър
| Тип | Вход | Етаж | Стаи | Изглед | Живуща площ | Обща площ | Цена за кв/м | Обща цена | Статут | |
|---|---|---|---|---|---|---|---|---|---|---|
| Апартамент 1 | A | 1 | 2 | юг, изток | 89.63 | 103.63 | продаден | |||
| Апартамент 2 | A | 1 | 2 | юг | 56.41 | 65.22 | продаден | |||
| Апартамент 3 | A | 1 | 2 | юг | 56.41 | 65.22 | продаден | |||
| Апартамент 4 | A | 1 | 2 | юг | 56.41 | 65.22 | продаден | |||
| Апартамент 5 | A | 1 | 3 | юг, запад | 107.59 | 124.39 | продаден | |||
| Апартамент 6 | A | 2 | 2 | изток, север | 60.92 | 70.43 | 0 | 190 000 € | свободен | |
Апартамент 6Дневна с кухненски бокс, 1 спалня с дрешник, баня с тоалетна, антре, склад, балкон Вход: AЕтаж: 2Стаи: 2Изглед: изток, северЖилищна площ: 60.92Обща площ: 70.43Цена за кв/м: 0 €Обща цена: 190 000 €Статут: свободенЛинк: https://besohomes.bg/projects/azalea-gardens/#6
| ||||||||||
| Апартамент 7 | A | 2 | 3 | юг, изток | 102.7 | 118.74 | продаден | |||
| Апартамент 8 | A | 2 | 2 | юг | 60.16 | 69.55 | продаден | |||
| Апартамент 9 | A | 2 | 2 | юг | 60.16 | 69.55 | продаден | |||
| Апартамент 10 | A | 2 | 2 | юг | 60.16 | 69.55 | продаден | |||
| Апартамент 11 | A | 2 | 3 | юг, запад | 81.3 | 94 | продаден | |||
| Апартамент 12 | A | 2 | 2 | запад, север | 59.84 | 69.18 | продаден | |||
| Апартамент 13 | A | 3 | 2 | изток, север | 58.39 | 67.51 | продаден | |||
| Апартамент 14 | A | 3 | 3 | юг, изток | 103.03 | 119.12 | продаден | |||
| Апартамент 15 | A | 3 | 2 | юг | 60.16 | 69.55 | продаден | |||
| Апартамент 16 | A | 3 | 2 | юг | 60.16 | 69.55 | продаден | |||
| Апартамент 17 | A | 3 | 2 | юг | 60.16 | 69.55 | продаден | |||
| Апартамент 18 | A | 3 | 3 | юг, запад | 81.3 | 94 | продаден | |||
| Апартамент 19 | A | 3 | 2 | запад, север | 59.84 | 69.18 | продаден | |||
| Апартамент 20 | A | 4 | 2 | изток, север | 57.63 | 66.63 | продаден | |||
| Апартамент 21 | A | 4 | 3 | юг, изток | 106.67 | 123.32 | продаден | |||
| Апартамент 22 | A | 4 | 2 | юг | 60.21 | 69.61 | продаден | |||
| Апартамент 23 | A | 4 | 2 | юг | 60.35 | 69.77 | продаден | |||
| Апартамент 24 | A | 4 | 2 | юг | 60.16 | 69.55 | продаден | |||
| Апартамент 25 | A | 4 | 3 | юг, запад | 81.7 | 94.46 | продаден | |||
| Апартамент 26 | A | 4 | 2 | запад, север | 59.69 | 69.01 | продаден | |||
| Апартамент 27 | A | 5 | 2 | изток, север | 57.63 | 66.63 | продаден | |||
| Апартамент 28 | A | 5 | 3 | юг, изток | 106.67 | 123.32 | продаден | |||
| Апартамент 29 | A | 5 | 2 | юг | 60.21 | 69.61 | продаден | |||
| Апартамент 30 | A | 5 | 2 | юг | 60.35 | 69.77 | продаден | |||
| Апартамент 31 | A | 5 | 2 | юг | 60.16 | 69.55 | продаден | |||
| Апартамент 32 | A | 5 | 3 | юг, запад | 81.7 | 94.46 | продаден | |||
| Апартамент 33 | A | 5 | 2 | запад, север | 59.69 | 69.01 | продаден | |||
| Апартамент 34 | A | 6 | 2 | изток, север | 62.56 | 94.4 | продаден | |||
| Апартамент 35 | A | 6 | 3 | юг, изток | 117.73 | 139.29 | продаден | |||
| Апартамент 36 | A | 6 | 2 | юг | 60.16 | 69.55 | продаден | |||
| Апартамент 37 | A | 6 | 2 | юг | 60.16 | 69.56 | продаден | |||
| Апартамент 38 | A | 6 | 3 | юг, запад | 81.31 | 94.01 | продаден | |||
| Апартамент 39 | A | 6 | 2 | запад, север | 59.83 | 69.19 | продаден | |||
| Апартамент 40 | A | 6 | 4 | юг, изток, запад | 140.16 | 162.04 | продаден | |||
| Гараж 15 | A | 1 | - | - | 24.68 | 28.54 | продаден | |||
| Гараж 16 | A | 1 | - | - | 22.05 | 25.49 | продаден | |||
| Гараж 17 | A | 1 | - | - | 33.28 | 38.48 | продаден | |||
| Гараж 1 | A | Сутерен | - | - | 19.8 | 22.27 | продаден | |||
| Гараж 2 | A | Сутерен | - | - | 24.41 | 27.46 | продаден | |||
| Гараж 3 | A | Сутерен | - | - | 32.72 | 36.81 | продаден | |||
| Гараж 4 | A | Сутерен | - | - | 19.87 | 22.35 | продаден | |||
| Гараж 5 | A | Сутерен | - | - | 17.15 | 19.29 | продаден | |||
| Гараж 6 | A | Сутерен | - | - | 18.25 | 20.53 | продаден | |||
| Гараж 7 | A | Сутерен | - | - | 21.01 | 23.63 | продаден | |||
| Гараж 8 | A | Сутерен | - | - | 18.25 | 20.53 | продаден | |||
| Гараж 9 | A | Сутерен | - | - | 21.01 | 23.63 | продаден | |||
| Гараж 10 | A | Сутерен | - | - | 18.25 | 20.53 | продаден | |||
| Гараж 11 | A | Сутерен | - | - | 18.49 | 20.8 | продаден | |||
| Гараж 12 | A | Сутерен | - | - | 18.49 | 20.8 | продаден | |||
| Гараж 13 | A | Сутерен | - | - | 31.45 | 35.38 | продаден | |||
| Гараж 14 | A | Сутерен | - | - | 31.83 | 35.38 | продаден | |||
| Паркомясто 1 | A | Сутерен | - | 12.5 | продаден | |||||
| Паркомясто 2 | A | Сутерен | - | - | 12.5 | продаден | ||||
| Паркомясто 3 | A | Сутерен | - | - | 12.5 | продаден | ||||
| Паркомясто 4 | A | Сутерен | - | - | 12.5 | продаден | ||||
| Паркомясто 8 | A | Сутерен | - | - | 13.75 | продаден | ||||
| Паркомясто 11/12 | A | Сутерен | - | - | 13.75 | продаден | ||||
| Паркомясто 20 | A | Сутерен | - | - | 18 | продаден | ||||
| Паркомясто 25 | A | Сутерен | - | - | 12.59 | продаден | ||||
| Паркомясто 26 | A | Сутерен | - | - | 12.84 | продаден | ||||
| Паркомясто 27 | A | Сутерен | - | - | 13.1 | продаден | ||||
| Паркомясто 28 | A | Сутерен | - | - | 13.37 | продаден | ||||
| Паркомясто 29 | A | Сутерен | - | - | 13.63 | продаден | ||||
| Паркомясто 30 | A | Сутерен | - | - | 13.88 | продаден | ||||
| Паркомясто 31 | A | Сутерен | - | - | 14.16 | продаден | ||||
| Паркомясто 32 | A | Сутерен | - | - | 14.41 | продаден | ||||
| Открито ПМ 39 | A | 1 | - | - | 13.75 | продаден | ||||
| Открито ПМ 40 | A | 1 | - | - | 13.75 | продаден | ||||
Проявявате интерес?
Посочете апартамент и телефон за връзка и ние ще ви се обадим в удобно за вас време
































































