МНОГОФУНКЦИОНАЛНА СГРАДА С АПАРТАМЕНТИ, МАГАЗИНИ И ПОДЗЕМЕН ПАРКИНГ НА ДВЕ НИВА.
ЕТАЖНОСТ : 1 ТЪРГОВСКИ ЕТАЖ С МАГАЗИНИ И 9 ЖИЛИЩНИ ЕТАЖА
РАЗГЪНАТА ЗАСТРОЕНА ПЛОЩ НА СГРАДАТА: 4114 КВ.М.
МЕСТОПОЛОЖЕНИЕ: ГР. СОФИЯ, ЖК. МЛАДОСТ 3, БУЛ. „АЛЕКСАНДЪР МАЛИНОВ“
MICA RESIDENCE
Топ локация, лукс, модерна визия – предлага комфорт и стил за съвременния градски човек.
Сградата се отличава с Модерна архитектура, Луксозни общи части и Висококачествени материали. Инвеститорът е утвърден на българския пазар, а Проектът е създаден от Водещо Архитектурно студио. Жилищната сграда е разположена в югоизточната част на град София – жк. Младост 3. Районът е един от най-предпочитаните, поради развитата си инфраструктура, близостта до Бизнес Парк София, бързия достъп до центъра на града и до Летище София. В близост се намират множество детски градини, училища, банки, търговски центрове, ресторанти, както и два парка. Всичко, от което имате нужда, на една ръка разстояние. Отлично обезпечена локация от към градски транспорт – на метри от автобусна спирка и на пешеходно разстояние от две Метростанции.
Модерна архитектура с функционални разпределения
Проектирана от водещи архитекти, сградата се състои от един вход, с 9 жилищни етажа и 1 етаж с търговски площи.
43 бр. апартамента, 5 бр. ателиета, 3 магазина, 1 офис и 50 паркоместа, разпределени както следва:
Сутерен – подземен паркинг на 2 нива
Партер – Търговски площи
Жилищни етажи – 8 бр. с двустайни и тристайни апартаменти
1 панорамен етаж с четиристайни апартаменти
Общата разгърната площ на MICA RESIDENCE е 4114 кв.м.
Конструкцията на сградата е скелетно-безгредова от монолитен стоманобетон с висококачествена HPL вентилируема фасадна облицовка и минерална мазилка, нискоемисионен стъклопакет – немска дограма Rehau, топлоизолация от каменна вата 10 см и EPS и пароизолация на покривните пространства. Входното фоайе е с луксозни общи части по дизайнерски проект на Архитектурно студио „Иво Петров архитекти“. Сигурността на живущите в комплекса се гарантира от видеонаблюдение, аудио-визуална система на входа за всеки апартамент и ограничен достъп.
Изпълнител на проекта е Inno Build Enginering.
ЦЕНИТЕ НА АПАРТАМЕНТИ, ПАРКОМЕСТА И ГАРАЖИ – В ТАБЛИЦАТА СА С ДДС
MICA RESIDENCE – НОВО СТРОИТЕЛСТВО В МЛАДОСТ 3
ЕКСТЕРИОР
ИНТЕРИОР
Филтър
| Тип | Вход | Етаж | Стаи | Изглед | Живуща площ | Обща площ | Цена за кв/м | Обща цена | Статут | |
|---|---|---|---|---|---|---|---|---|---|---|
| Апартамент 1 | A | 1 | 2 | юг, запад | 91.59 | 110.59 | продаден | |||
| Апартамент 2 | A | 2 | 3 | юг, изток | 89.38 | 107.55 | продаден | |||
| Апартамент 3 | A | 2 | 2 | юг | 57.44 | 70.06 | продаден | |||
| Апартамент 4 | A | 2 | 2 | юг | 57.87 | 70.56 | продаден | |||
| Апартамент 5 | A | 2 | 2 | юг | 61.31 | 74.83 | продаден | |||
| Ателие 1 | A | 2 | 2 | север, изток | 55.4 | 66.75 | продаден | |||
| Апартамент 6 | A | 2 | 2 | изток | 59.79 | 72.77 | продаден | |||
| Апартамент 7 | A | 3 | 3 | юг, изток | 89.38 | 107.55 | продаден | |||
| Апартамент 8 | A | 3 | 2 | юг | 57.44 | 70.06 | продаден | |||
| Апартамент 9 | A | 3 | 2 | юг | 57.87 | 70.56 | продаден | |||
| Апартамент 10 | A | 3 | 2 | юг | 61.31 | 74.83 | продаден | |||
| Ателие 2 | A | 3 | 2 | север, изток | 55.4 | 67.03 | продаден | |||
| Апартамент 11 | A | 3 | 2 | изток | 59.79 | 72.97 | продаден | |||
| Апартамент 12 | A | 4 | 3 | юг, изток | 89.38 | 107.55 | продаден | |||
| Апартамент 13 | A | 4 | 2 | юг | 57.44 | 70 | продаден | |||
| Апартамент 14 | A | 4 | 2 | юг | 57.87 | 69.89 | продаден | |||
| Апартамент 15 | A | 4 | 2 | юг | 61.31 | 74.83 | продаден | |||
| Ателие 3 | A | 4 | 2 | север, изток | 55.4 | 67.03 | продаден | |||
| Апартамент 16 | A | 4 | 2 | изток | 59.79 | 72.11 | продаден | |||
| Апартамент 17 | A | 5 | 3 | юг, изток | 89.38 | 107.55 | продаден | |||
| Апартамент 18 | A | 5 | 2 | юг | 57.44 | 69.49 | продаден | |||
| Апартамент 19 | A | 5 | 2 | юг | 57.87 | 70.2 | продаден | |||
| Апартамент 20 | A | 5 | 2 | юг | 61.31 | 74.34 | продаден | |||
| Ателие 4 | A | 5 | 2 | север, изток | 55.4 | 67.65 | продаден | |||
| Апартамент 21 | A | 5 | 2 | изток | 59.79 | 72.42 | продаден | |||
| Апартамент 22 | A | 6 | 3 | юг, изток | 89.38 | 107.86 | продаден | |||
| Апартамент 23 | A | 6 | 2 | юг | 57.44 | 69.7 | продаден | |||
| Апартамент 24 | A | 6 | 2 | юг | 57.87 | 70.2 | продаден | |||
| Апартамент 25 | A | 6 | 2 | юг | 61.31 | 74.91 | продаден | |||
| Ателие 5 | A | 6 | 2 | север, изток | 55.4 | 67.14 | продаден | |||
| Апартамент 26 | A | 6 | 2 | изток | 59.79 | 72.42 | продаден | |||
| Апартамент 27 | A | 7 | 3 | юг, изток | 89.38 | 107.68 | продаден | |||
| Апартамент 28 | A | 7 | 2 | юг | 57.44 | 69.88 | продаден | |||
| Апартамент 29 | A | 7 | 3 | юг | 82.21 | 99.4 | продаден | |||
| Апартамент 30 | A | 7 | 3 | юг, изток, север | 97.89 | 117.36 | продаден | |||
| Апартамент 31 | A | 7 | 2 | север, изток | 59.79 | 73.83 | продаден | |||
| Апартамент 32 | A | 8 | 3 | юг, изток | 89.38 | 107.53 | продаден | |||
| Апартамент 33 | A | 8 | 2 | юг | 57.44 | 71.11 | продаден | |||
| Апартамент 34 | A | 8 | 3 | юг | 82.21 | 99.07 | продаден | |||
| Апартамент 35 | A | 8 | 3 | юг, изток, север | 97.89 | 117.2 | продаден | |||
| Апартамент 36 | A | 8 | 2 | север, изток | 59.79 | 74.85 | продаден | |||
| Апартамент 37 | A | 9 | 3 | юг, изток | 89.38 | 107.93 | продаден | |||
| Апартамент 38 | A | 9 | 2 | юг | 57.44 | 70.36 | продаден | |||
| Апартамент 39 | A | 9 | 3 | юг | 82.21 | 99.64 | продаден | |||
| Апартамент 40 | A | 9 | 3 | юг, изток, север | 97.89 | 118.04 | продаден | |||
| Апартамент 41 | A | 9 | 2 | север, изток | 59.79 | 73.07 | продаден | |||
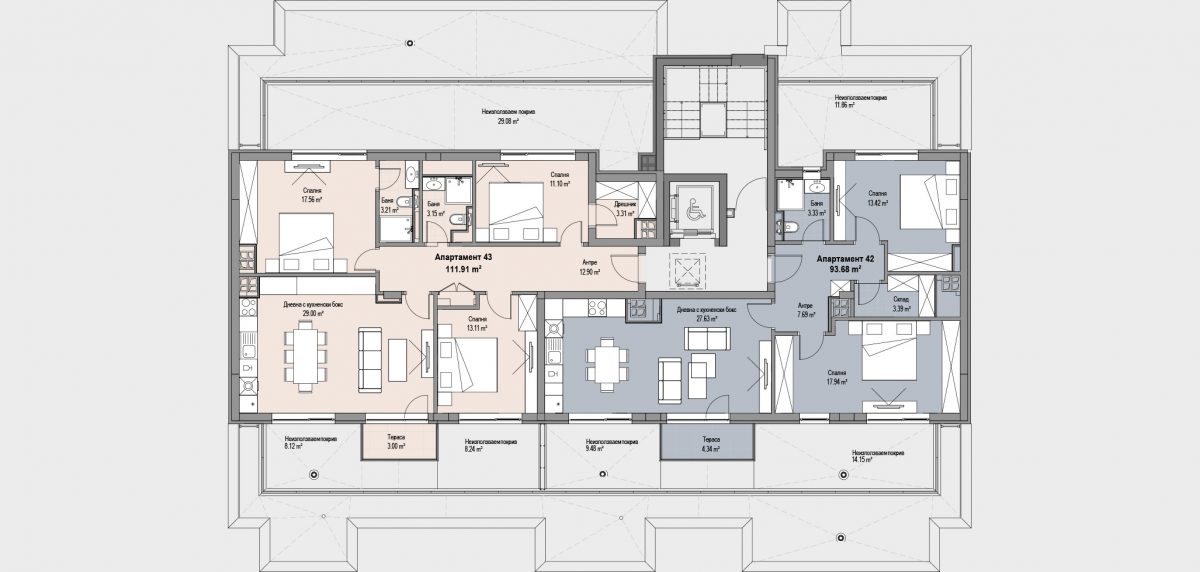
| Апартамент 42 | A | 10 | 3 | юг, изток, запад | 93.68 | 113.47 | продаден | |||
| Апартамент 43 | A | 10 | 4 | юг, запад, изток, север | 111.91 | 180.82 | продаден | |||
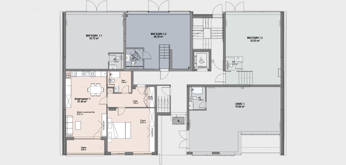
| Магазин 1.1 | A | 1 | изток | 43.72 | 55.26 | продаден | ||||
| Магазин 1.2 | A | 1 | изток | 48.35 | 60.77 | продаден | ||||
| Магазин 1.3 | A | 1 | изток | 53.03 | 71.69 | продаден | ||||
| Офис | A | 1 | юг, запад | 70.84 | 91.31 | продаден | ||||
| Паркомясто 1 | -1 | 16.04 | продаден | |||||||
| Паркомясто 2 | -1 | 16.12 | продаден | |||||||
| Паркомясто 3 | -1 | 16.12 | продаден | |||||||
| Паркомясто 4 | -1 | 15.82 | продаден | |||||||
| Паркомясто 5 | -1 | 21.81 | продаден | |||||||
| Паркомясто 6 | -1 | 17.05 | продаден | |||||||
| Паркомясто 7 | -1 | 14.56 | продаден | |||||||
| Паркомясто 8 | -1 | 14.56 | продаден | |||||||
| Паркомясто 9 | -1 | 14.56 | продаден | |||||||
| Паркомясто 10/10А | -1 | 13.79 | продаден | |||||||
| Паркомясто 11/11А | -1 | 13.81 | продаден | |||||||
| Паркомясто 12/12А | -1 | 14 | продаден | |||||||
| Паркомясто 13 | -1 | 13.83 | продаден | |||||||
| Паркомясто 14 | -1 | 14.17 | продаден | |||||||
| Паркомясто 15 | -1 | 20.72 | продаден | |||||||
| Паркомясто 16 | -2 | 16.04 | продаден | |||||||
| Паркомясто 17/17А | -2 | 17.67 | продаден | |||||||
| Паркомясто 18/18А | -2 | 16.12 | продаден | |||||||
| Паркомясто 19/19А | -2 | 16.12 | продаден | |||||||
| Паркомясто 20/20А | -2 | 19.87 | продаден | |||||||
| Паркомясто 21 | -2 | 28.47 | продаден | |||||||
| Паркомясто 22 | -2 | 33.14 | продаден | |||||||
| Паркомясто 23 | -2 | 15.06 | продаден | |||||||
| Паркомясто 24/24А | -2 | 17.05 | продаден | |||||||
| Паркомясто 25/25А | -2 | 14.56 | продаден | |||||||
| Паркомясто 26/26А | -2 | 14.56 | продаден | |||||||
| Паркомясто 27/27А | -2 | 14.56 | продаден | |||||||
| Паркомясто 28/28А | -2 | 13.79 | продаден | |||||||
| Паркомясто 29/29А | -2 | 13.81 | продаден | |||||||
| Паркомясто 30/30А | -2 | 14 | продаден | |||||||
| Паркомясто 31 | -2 | 13.83 | продаден | |||||||
| Паркомясто 32 | -2 | 14.17 | продаден | |||||||
| Паркомясто 33 | -2 | 20.22 | продаден | |||||||
Проявявате интерес?
Посочете апартамент и телефон за връзка и ние ще ви се обадим в удобно за вас време



























































































